Vă propunem spre achiziție locuințe în viitorul ansamblu rezidențial Avantaj Sânpetru 4. Proiectul oferă 32 de case individuale, construite pe structură de cărămidă, ce îmbină designul contemporan cu funcționalitatea. Proprietățile oferă un echilibru între liniștea zonei Sânpetru și accesul facil către facilitățile urbane ale Brașovului.
DETALII TEHNICE ȘI COMPARTIMENTARE
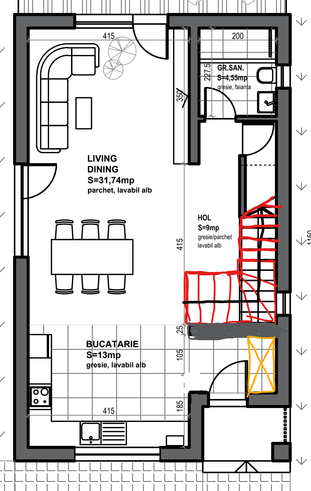
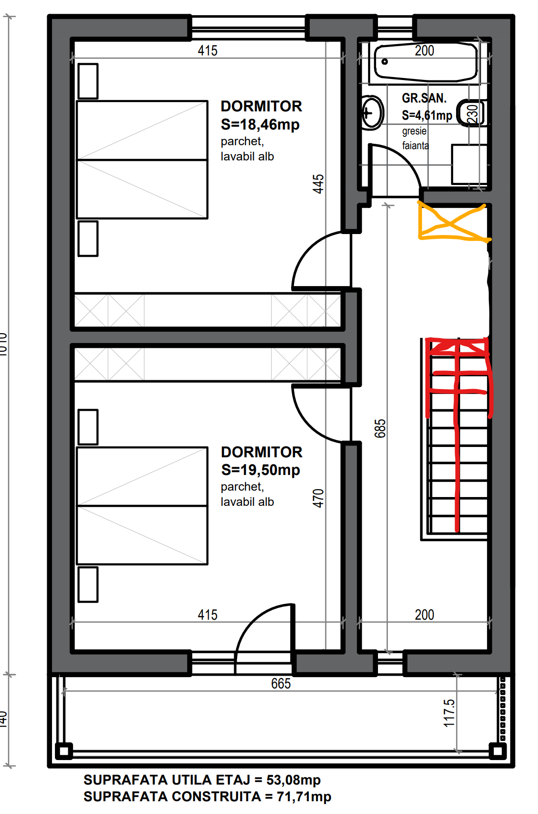
Fiecare casă dispune de o suprafață utilă de aproximativ 118 mp, fiind desfășurată pe parter și mansardă, pe un teren propriu de 400 mp.
– Parter: Cameră de zi, zonă de luat masa, bucătărie de tip open-space, terasă, baie, hol și casa scării.
– Mansardă: Două dormitoare spațioase, baie, hol și balcon.
Construcția este axată pe eficiență termică și durabilitate: izolație exterioară cu polistiren de 10 cm, vată bazaltică la mansardă și tâmplărie PVC cu geam termopan (trei foi de sticlă) pentru o izolare fonică și termică optimă.
DOTĂRI ȘI FINISAJE
Casele se vor preda finisate la cheie, pregătite pentru mobilare:
– Finisaje: Parchet, gresie, faianță și băi echipate cu obiecte sanitare moderne.
– Sistem de încălzire: Centrală termică proprie pe gaz și încălzire prin pardoseală, asigurând o distribuție uniformă a căldurii în toată locuința.
– Utilități complete: Gaz, apă curentă, canalizare și curent electric.
LOCALIZARE ȘI ACCESIBILITATE
Amplasarea ansamblului este un avantaj major pentru familiile active:
– La doar 700 m de Grădinița cu program prelungit și Școala Gimnazială din Sânpetru.
– La 1 km de stația de autobuz (liniile 411, 412, 420), care asigură legătura rapidă cu municipiul Brașov.
CONDIȚII DE ACHIZIȚIE
Vânzătorul este persoană juridică, oferind claritate și siguranță procesului de achiziție.
Preț: Include TVA de 21%.
Comision: 0% pentru cumpărători.
Se acceptă plata prin credit bancar.
CONTACT
Pentru mai multe informații despre stadiul lucrărilor, prețuri sau pentru a programa o vizită la locație, vă stăm la dispoziție.